• TOP ponuka
  • Dobrá lokalita
Druh ponuky: prenajom
Druh nehnuteľnosti: Obchodné priestory
Stav nehnuteľnosti: Novostavba
Mesto/obec: Košice - Ťahanovce
Úžitková plocha: 200 m 2
id: 5545

Cena: 10 /m2/mesiac

Popis nehnuteľnosti:

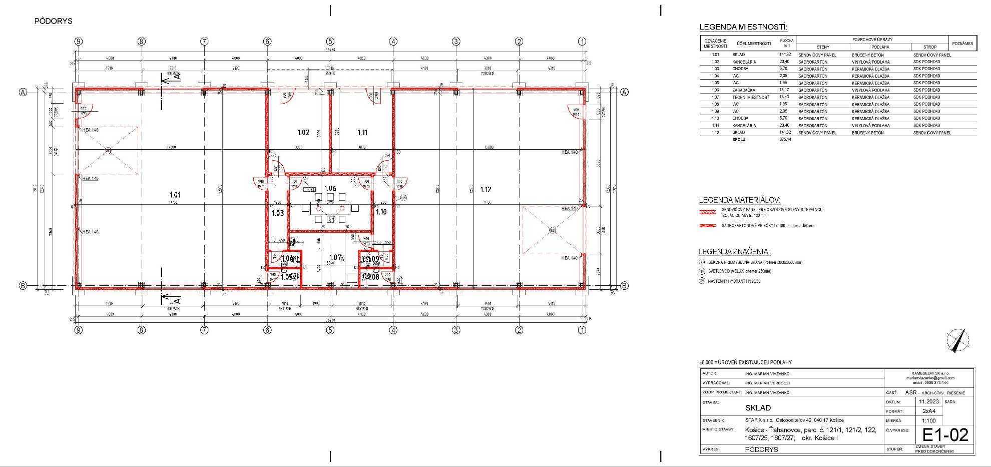
Ponúkame na prenájom 1/2 budovy v NOVO postavenom obchodno-skladovom priestore. Prenajímaný priestor má úžitkovú plochu 200 m² a je situovaný v obchodno-priemyselnej zóne Košíc na ulici Magnezitárska, v Mestskej časti Košice - Ťahanovce.

Areál má komfortné napojenie na dopravnú infraštruktúru priamo smerujúcu na hlavné cestné ťahy mesta Košice s dobrým napojením do centra mesta. V blízkosti sú zastávky MHD v oboch smeroch. Priestory sú skolaudované a využiteľné pre skladovanie s prepojením na kanceláriu, zasadaciu miestnosť, dvoma samostatnými sociálnymi zariadeniami pre skladový priestor a samostatne pre kanceláriu.

Celý objekt je postavený z kvalitných stavebných materiálov vo vysokom štandarde.

Priestor pozostáva:

︎ Sklad o úžitkovej ploche 142 m²

︎ Kancelárske a sociálne zázemie 58 m²

Zdieľaná zasadacia miestnosť 18,17m²

︎ Manipulačné plochy priamo pred bránou

︎ Tri parkovacie miesta pre zamestnancov a zákazníkov

Technický opis skladového priestoru:

︎ Železo sendvičová konštrukcia s rozmermi 32,43 x 12,81 m.

︎ Vnútorná svetlá výška 4,815 m.

︎ pancierová podlaha

︎ optický internet

︎ kamerový systém

︎ alarm

︎ merač elektriny a vody pre priestory v tejto ponuke

︎ vykurovanie tepelným čerpadlom: podlahové vykurovanie v kancelárskych priestoroch, v skladovom priestore vykurovanie prostredníctvom radiátora

︎ Priestor je vybavený výsuvnou elektrickou bránou s rozmermi š: 3 x v: 4m.

Cenník nájomného:

︎ Skladové priestory: 10 € bez DPH/ 1m² / 1 mesiac.

︎ Kancelárie priestory: 10 € bez DPH/ 1m² / 1 mesiac.

︎ Prenájom parkovacieho státia: 50,00 € / osobné vozidlo/ 1 mesiac.

︎ Minimálna dĺžka doby nájmu: 5 rokov a viac.

Kontakt: +421911900062.

Aktuálnu ponuku všetkých našich nehnuteľností nájdete na stránke spoločnosti Orion Real s.r.o.